Okno aluminiowe MB-70 HI
Nowoczesność i funkcjonalność | zaawansowane rozwiązania dla energooszczędnych budynków
W odpowiedzi na wciąż wzrastające zapotrzebowanie na produkty budowlane wyróżniające się wysokimi parametrami izolacyjności termicznej, opracowano systemy okienno-drzwiowe. Są nimi MB-70HI oraz MB-70US HI wyposażone w termiczną przegrodę, a także osłonowa ściana powstała w oparciu o okna MB-70CW HI. Ich budowę oparto na systemach bazowych: MB-70, MB-70US i MB-70CW, które są cenione, sprawdzone i rozbudowywane.
W odróżnieniu od izolacyjności ram systemów bazowych, ta w ww. systemach jest znacznie wyższa. W przypadku MB-70HI współczynnik Uf dla konstrukcji wynosi od 1,0 do 2,3 W/m2K. Jest to zależne od zastosowanych akcesoriów i profili.


| Informacje podstawowe | |
|---|---|
| Liczba szyb | 3 |
| Liczba uszczelek | 3 |
| Liczba komór | 3/4 |
| Współczynnik Uw | 0.7 |
| System izolacji termicznej | HI – High Insulation |
| Rodzaj profili | aluminiowe |
| Maks. oszklenie | do 48 mm |
| Parametry techniczne | |
|---|---|
| Marka | Aluprof |
| Uf | 1.3 |
| Ug | 0.6 |
| Uw | 0.7 |
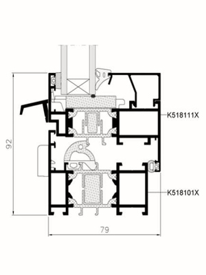
| Głębokość ramy | 70 mm |
| Głębokość skrzydła | 79 mm |
| Maksymalny wymiar skrzydła | 2,5/2,4 m2 |
| Maks. waga skrzydła | 140 kg |

Poznaj profil okna aluminiowego MB-70 HI
Okno aluminiowe MB-70 HI to doskonałe połączenie nowoczesnego designu i zaawansowanych technologii. Dzięki systemowi izolacji termicznej HI (High Insulation) oraz trzykomorowym lub czterokomorowym profilom aluminiowym, to okno gwarantuje wysoką izolację termiczną i akustyczną. Idealnie nadaje się do zastosowania w energooszczędnych budynkach, oferując nie tylko oszczędność energii, ale także niepowtarzalny wygląd.
Komu rekomendujemy Okno aluminiowe MB-70 HI?
Osobom, które poszukują okien o minimalistycznym designie, które wpiszą się w nowoczesny charakter budynku.
Inwestorom i architektom, którzy stawiają na innowacyjne rozwiązania i wysoką jakość wykonania.
Jaki klient końcowy powinien być zainteresowany Oknami aluminiowymi MB-70 HI?
Klientom, którzy pragną nowoczesnych i funkcjonalnych okien, które doskonale będą spełniać ich potrzeby.
Osobom, które cenią sobie jakość i trwałość produktów, a także dbają o oszczędność energii i ekologię.
Dobra alternatywa Okna aluminiowego MB-70 HI – Schüco AWS 75.SI+
Jeśli interesują Cię wyjątkowe parametry termiczne oraz szeroka paleta kolorów, warto rozważyć alternatywę jaką stanowi okno Schüco AWS 75.SI+. Ten model zapewni doskonałą izolację termiczną i estetyczny wygląd.
Atuty systemu MB-70HI
Jego izolację termiczną można podwyższyć, dzięki zamontowaniu w centralnej komorze izolacyjnej specjalnych wkładów. Za sprawą niskiego współczynniki przewodzenia ciepła, wkłady zmniejszają przepływ ciepła przez komorę. Ich centralne umiejscowienie obniża również promieniowanie termiczne i konwekcję.
Drzwi i okna systemu MB-70HI (jak przy systemie bazowym) mogą zostać zastosowane przy wykonaniu zabudowy indywidualnej i fasad aluminiowych. Przy wykorzystaniu jako wypełnienie ścian słupowo-ryglowych wskazane jest połączenie ich z systemem z podwyższoną izolacyjnością termiczną – MB-SR50 HI.
Więcej o producencie Okien aluminiowych MB-70 HI
Firma Aluprof to ceniony producent systemów aluminiowych, który od lat oferuje innowacyjne rozwiązania dla budownictwa. Okno aluminiowe MB-70 HI to efekt ich długoletnich badań i zaangażowania.
Więcej o mocnych stronach Okna aluminiowego MB-70 HI
– System izolacji termicznej HI (High Insulation), który zapewnia doskonałą ochronę przed utratą ciepła.
– Profil aluminiowy o minimalistycznym wyglądzie, który doskonale komponuje się z nowoczesną architekturą.
Podsumowanie Okien aluminiowych MB-70 HI
Okno aluminiowe MB-70 HI to doskonałe rozwiązanie dla tych, którzy pragną połączyć funkcjonalność z nowoczesnym stylem. Dzięki zaawansowanym technologiom i wysokiej jakości wykonania, te okna zapewniają doskonałą izolację termiczną i akustyczną. Wybierz Okna aluminiowe MB-70 HI, aby cieszyć się nie tylko oszczędnością energii, ale także niepowtarzalnym designem, który nadaje charakter Twojemu budynkowi.