Stolarka przeciwpożarowa MB-78 EI
Ochrona i bezpieczeństwo przed ogniem | innowacyjne rozwiązania dla budynków wymagających stolarki przeciwpożarowej najwyższej klasy
Stolarka przeciwpożarowa MB-78 EI to zaawansowane rozwiązanie dla budynków, które wymagają najwyższej klasy stolarki przeciwpożarowej. Wykonana z wysokiej jakości aluminium, ta stolarka charakteryzuje się doskonałą odpornością na działanie ognia, zapewniając ochronę i bezpieczeństwo w razie pożaru. Stolarka przeciwpożarowa MB-78 EI została odpowiednio zatwierdzona w klasach odporności ogniowej od EI 30 do EI 120, co pozwala na dostosowanie do różnorodnych wymagań projektów. To idealne rozwiązanie dla budynków użyteczności publicznej, przemysłowych i handlowych, które stawiają na innowacyjne i niezawodne rozwiązania ochronne


| Informacje podstawowe | |
|---|---|
| Rodzaj stolarki | Stolarka przeciwpożarowa MB-78 EI |
| Zastosowanie | Budynki użyteczności publicznej, przemysłowe, handlowe |
| Materiał | Aluminium |
| Kolorystyka | Różnorodne kolory i wykończenia |
| Klasa odporności ogniowej | EI 30, EI 60, EI 90, EI 120 |
| Odporność na działanie ognia | Tak |
| Odporność na warunki atmosferyczne | Tak |
| Odporność na promieniowanie UV | Tak |
| Odporność na wilgoć | Tak |
| Dostępne rozmiary | Dostosowane do wymiarów stolarki przeciwpożarowej |
| Parametry techniczne | |
|---|---|
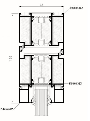
| Głębokość profili | 78 mm |
| Systemy profili | MB-78 EI |
| Klasa odporności na obciążenie wiatrem | Do klasy C5 |
| Rodzaj szklenia | Szkło przeciwpożarowe, laminowane, hartowane |
| Maksymalna wysokość | Dostosowana do projektu |
| Maksymalna szerokość | Dostosowana do projektu |

Poznaj stolarkę przeciwpożarową MB-78 EI
Stolarka przeciwpożarowa MB-78 EI to zaawansowane rozwiązanie dla budynków, które wymagają najwyższej klasy stolarki przeciwpożarowej. Wykonana z wysokiej jakości aluminium, ta stolarka charakteryzuje się doskonałą odpornością na działanie ognia, zapewniając ochronę i bezpieczeństwo w razie pożaru. Stolarka przeciwpożarowa MB-78 EI została odpowiednio zatwierdzona w klasach odporności ogniowej od EI 30 do EI 120, co pozwala na dostosowanie do różnorodnych wymagań projektów. To idealne rozwiązanie dla budynków użyteczności publicznej, przemysłowych i handlowych, które stawiają na innowacyjne i niezawodne rozwiązania ochronne.
Zastosowanie stolarki przeciwpożarowej MB-78 EI:
– W szpitalach, szkołach i obiektach użyteczności publicznej, gdzie bezpieczeństwo jest priorytetem.
– W halach przemysłowych, magazynach i obiektach handlowych, aby zabezpieczyć mienie i ochronić przed rozprzestrzenianiem się ognia.
– W budynkach komercyjnych i biurowcach, gdzie istnieje ryzyko pożaru i wymagana jest stolarka spełniająca wysokie normy przeciwpożarowe.
Komu rekomendujemy stolarkę przeciwpożarową MB-78 EI?
Inwestorom i architektom, którzy priorytetowo traktują bezpieczeństwo i ochronę przed ogniem w swoich projektach.
Osobom odpowiedzialnym za budynki użyteczności publicznej i przemysłowe, które wymagają stolarki przeciwpożarowej najwyższej jakości.
Jaki klient końcowy powinien być zainteresowany stolarką przeciwpożarową MB-78 EI?
Klientom, którzy pragną spełnić najwyższe standardy przeciwpożarowe i zadbać o bezpieczeństwo swoich obiektów.
Inwestorom i deweloperom, którzy poszukują niezawodnych i innowacyjnych rozwiązań ochronnych dla swoich projektów.
Dobra alternatywa stolarki przeciwpożarowej MB-78 EI – Stolarka przeciwpożarowa MB-78 EI REI
Jeśli interesuje Cię jeszcze wyższy poziom odporności ogniowej, warto rozważyć alternatywę jaką stanowi stolarka przeciwpożarowa MB-78 EI REI. Ten model oferuje rozszerzone parametry przeciwpożarowe, spełniając wymagania bardziej zaawansowanych projektów.
Więcej o producencie stolarki przeciwpożarowej MB-78 EI
Firma Stolarka przeciwpożarowa MB-78 EI to ceniony producent wysokiej klasy rozwiązań przeciwpożarowych, znany z zaangażowania w bezpieczeństwo i jakość swoich produktów. Stolarka przeciwpożarowa MB-78 EI to efekt ich ciągłych badań i innowacyjności w dziedzinie ochrony przed ogniem.
Więcej o mocnych stronach stolarki przeciwpożarowej MB-78 EI:
– Doskonała odporność ogniowa, gwarantująca najwyższy poziom bezpieczeństwa.
– Odporność na warunki atmosferyczne, zapewniająca długotrwałą trwałość stolarki.
Podsumowanie stolarki przeciwpożarowej MB-78 EI:
Stolarka przeciwpożarowa MB-78 EI to zaawansowane rozwiązanie dla budynków, które wymagają najwyższej klasy stolarki przeciwpożarowej. Dzięki innowacyjnym parametrom technicznym oraz szerokiemu spektrum klas odporności ogniowej, ta stolarka spełnia różnorodne wymagania projektów, zapewniając niezawodną ochronę i bezpieczeństwo w przypadku pożaru.
Do pobrania