Okno PVC Danline
Nowy skandynawski design Kształt profilu dopasowany do wymagań skandynawskiej kultury

Danline to system okien w stylu skandynawskim. Są one otwierane na zewnątrz, co pozwala w pełni wykorzystać przestrzeń w pomieszczeniach. Okna tego typu cenione są przez zagranicznych Klientów, choć w Polsce także mają swoje grono zwolenników. Charakteryzują się wysoką szczelnością i energooszczędnością, a do tego niebanalnym wyglądem. Zastosowano w nich bardzo wąskie ramki, dzięki czemu wydają się większe, niż są w rzeczywistości.
| Informacje podstawowe | |
|---|---|
| Liczba szyb | 2 |
| Liczba uszczelek | 2 |
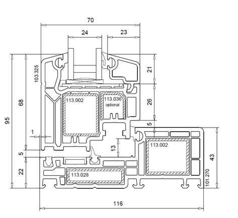
| Liczba komór | 5/6 |
| Współczynnik Uw | 0.85 |
| Głębokość profilu | 95 mm |
| Zgrzew | mikro zgrzew |
Poznaj profil okna PVC – Danline
Okno PVC Danline to połączenie skandynawskiego designu z wyjątkową funkcjonalnością. Jego dopasowany kształt profilu odzwierciedla skandynawską estetykę, a jednocześnie zapewnia doskonałą ochronę przed warunkami atmosferycznymi. System Danline znakomicie sprawdza się zarówno w nowo powstałych, jak i remontowanych domach, gwarantując doskonałe parametry termiczne i akustyczne.
Komu rekomendujemy Okna PVC Danline?
Osobom poszukującym okien o nowoczesnym i skandynawskim designie, które dodadzą harmonii i elegancji ich wnętrzom.
Inwestorom i architektom, którzy zwracają uwagę na jakość wykonania oraz funkcjonalność okien.
Jaki klient końcowy powinien być zainteresowany Oknami Danline?
Klientom, którzy cenią sobie minimalistyczny styl, charakterystyczny dla skandynawskiego wzornictwa.
Osobom, które pragną osiągnąć wysoką izolację termiczną i akustyczną w swoim domu.
Zalety systemu Danline
*skandynawski designe,
*kształt profilu dopasowany do wymagań skandynawskiej kultury,
*system może być stosowany zarówno w budynkach nowo powstałych, jak i w domach remontowanych,
*rama o szerokości 116mm i skrzydło o szerokości 70 mm gwarantuje odpowiednią ochronę przed wiatrem oraz utratą ciepła,
*grubość ściany w najwyższym standardzie jakości (RAL klasa A),
*sprawdzone wzmocnienia stalowe dla zapewnienia stabilności konstrukcji,
*łączna wysokość ramy wraz ze skrzydłem tylko 95mm gwarantuje maksymalne doświetlenie pomieszczeń,
*układ uszczelek zapewnia doskonałą szczelność, izolację akustyczną oraz izolację cieplną,
*różne sposoby otwierania na zewnątrz.
Okna Danline dostępne w naszej ofercie
W naszej ofercie znajdują się okna Danline w kilku wariantach. Dzięki zastosowaniu specjalnych okuć w systemie Danline możemy zaoferować różne sposoby otwierania: wychylno-obrotowe top- swing, wychylne top-hung, obrotowe side-swing, rozwierne side-hung, co daje możliwość dostosowania okien do indywidualnych potrzeb.
Więcej o Oknie Danline
Danline to system profili okiennych producenta profili VEKA
Więcej o mocnych stronach Okna Danline
– Skandynawski design, który podkreśla nowoczesność wnętrza.
– Doskonałe parametry termiczne i akustyczne zapewniające komfort użytkowania.
Podsumowanie Okien Danline
Okno PVC Danline to idealne rozwiązanie dla tych, którzy pragną połączyć unikalny design z doskonałymi parametrami technicznymi. Jego smukła konstrukcja, efektywne uszczelnienia oraz różnorodność systemów otwierania czynią je odpowiednim wyborem zarówno dla nowoczesnych, jak i remontowanych domów. Wybierz Danline, jeśli chcesz stworzyć przestronne i funkcjonalne wnętrza, które wyróżnią się elegancją i wyrafinowaniem.











