Stolarka PVC Vekamotion 82
Nowoczesny design i doskonała funkcjonalność | innowacyjne rozwiązanie dla wygodnego użytkowania
Stolarka PVC Vekamotion 82 to doskonałe połączenie nowoczesnego designu i zaawansowanych rozwiązań funkcjonalnych. Dzięki cienkim profilom i innowacyjnym okuciom, ta stolarka umożliwia płynne i ciche otwieranie oraz zamykanie. Wykonana z trwałego i odporowego na warunki atmosferyczne PVC, stolarka Vekamotion 82 charakteryzuje się wysoką izolacją cieplną, co przekłada się na komfort termiczny i oszczędność energii w budynku. To idealne rozwiązanie dla tych, którzy pragną połączyć nowoczesny wygląd z doskonałą funkcjonalnością


| Informacje podstawowe | |
|---|---|
| Rodzaj stolarki | Stolarka PVC Vekamotion 82 |
| Zastosowanie | Budynki mieszkalne, biurowe, użyteczności publicznej |
| Materiał | PVC (polichlorek winylu) |
| Kolorystyka | Różnorodne kolory i wykończenia |
| Rodzaj otwierania | Otwieranie przesuwne |
| Estetyka | Cienkie profile, nowoczesny design |
| Odporność na warunki atmosferyczne | Tak |
| Odporność na promieniowanie UV | Tak |
| Odporność na wilgoć | Tak |
| Dostępne rozmiary | Dostosowane do wymiarów stolarki |
| Parametry techniczn | |
|---|---|
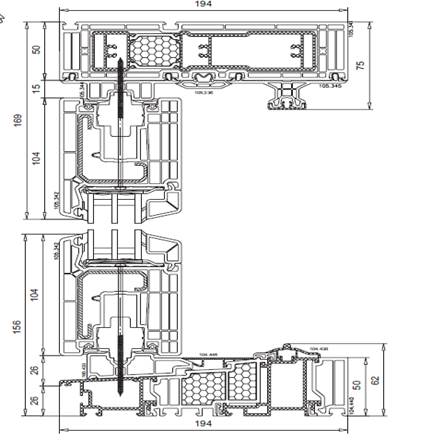
| Głębokość profili | 82 mm |
| Systemy profili | Vekamotion 82 |
| Izolacja cieplna | Wysoka |
| Rodzaj szyb | Szkło termoizolacyjne, akustyczne, przeciwsłoneczne |
| Rodzaj okuć | Innowacyjne okucia umożliwiające płynne i ciche otwieranie |
| Maksymalny rozmiar przeszkleń | Dostosowany do projektu |

Poznaj stolarkę PVC Vekamotion 82
Stolarka PVC Vekamotion 82 to doskonałe połączenie nowoczesnego designu i zaawansowanych rozwiązań funkcjonalnych. Dzięki cienkim profilom i innowacyjnym okuciom, ta stolarka umożliwia płynne i ciche otwieranie oraz zamykanie. Wykonana z trwałego i odporowego na warunki atmosferyczne PVC, stolarka Vekamotion 82 charakteryzuje się wysoką izolacją cieplną, co przekłada się na komfort termiczny i oszczędność energii w budynku. To idealne rozwiązanie dla tych, którzy pragną połączyć nowoczesny wygląd z doskonałą funkcjonalnością.
Zastosowanie stolarki PVC Vekamotion 82:
– W nowoczesnych apartamentach i mieszkaniach, gdzie design i wygoda są ważne.
– W biurach i budynkach użyteczności publicznej, aby zapewnić efektywne użytkowanie i komfort użytkownikom.
– W obiektach hotelowych i rekreacyjnych, gdzie elegancja idzie w parze z praktycznością.
Komu rekomendujemy stolarkę PVC Vekamotion 82?
Osobom ceniącym sobie nowoczesny design i innowacyjne rozwiązania techniczne.
Inwestorom, którzy pragną stworzyć przestrzeń o wyjątkowym charakterze, jednocześnie zapewniającą komfort i oszczędność energii.
Jaki klient końcowy powinien być zainteresowany stolarką PVC Vekamotion 82?
Klientom poszukującym wysokiej jakości stolarki, która łączy w sobie estetykę i funkcjonalność.
Osobom, które cenią sobie płynne i ciche otwieranie oraz doskonałą izolację termiczną.
Dobra alternatywa stolarki PVC Vekamotion 82 – Stolarka PVC Vekaslide 82
Jeśli interesuje Cię przesuwny system otwierania, warto zwrócić uwagę na alternatywę jaką stanowi stolarka PVC Vekaslide 82. Ten model oferuje podobne parametry techniczne, przy zachowaniu różnych możliwości otwierania i estetyki.
Więcej o producencie stolarki PVC Vekamotion 82
Firma Stolarka PVC Vekamotion 82 to ceniony producent wysokiej klasy rozwiązań stolarki PVC, znany z innowacyjności i zaawansowanych technologii. Stolarka PVC Vekamotion 82 to efekt ich długotrwałego doświadczenia i zaangażowania w tworzenie produktów najwyższej jakości.
Więcej o mocnych stronach stolarki PVC Vekamotion 82:
Nowoczesny design, który doskonale wpisuje się w trendy architektoniczne.
Zaawansowane okucia zapewniające płynne i ciche otwieranie.
Wysoka izolacja cieplna, przekładająca się na komfort termiczny i oszczędność energii.
Podsumowanie stolarki PVC Vekamotion 82
Stolarka PVC Vekamotion 82 to wyjątkowe połączenie estetyki i funkcjonalności, idealne dla tych, którzy pragną nowoczesnego wyglądu oraz wygodnego użytkowania. Cienkie profile, innowacyjne okucia i wysoka izolacja cieplna to cechy, które wyróżniają tę stolarkę na tle innych rozwiązań.